Skip to main content
Home
About
Projects
Services
Contact
Home
About
Projects
Services
Contact
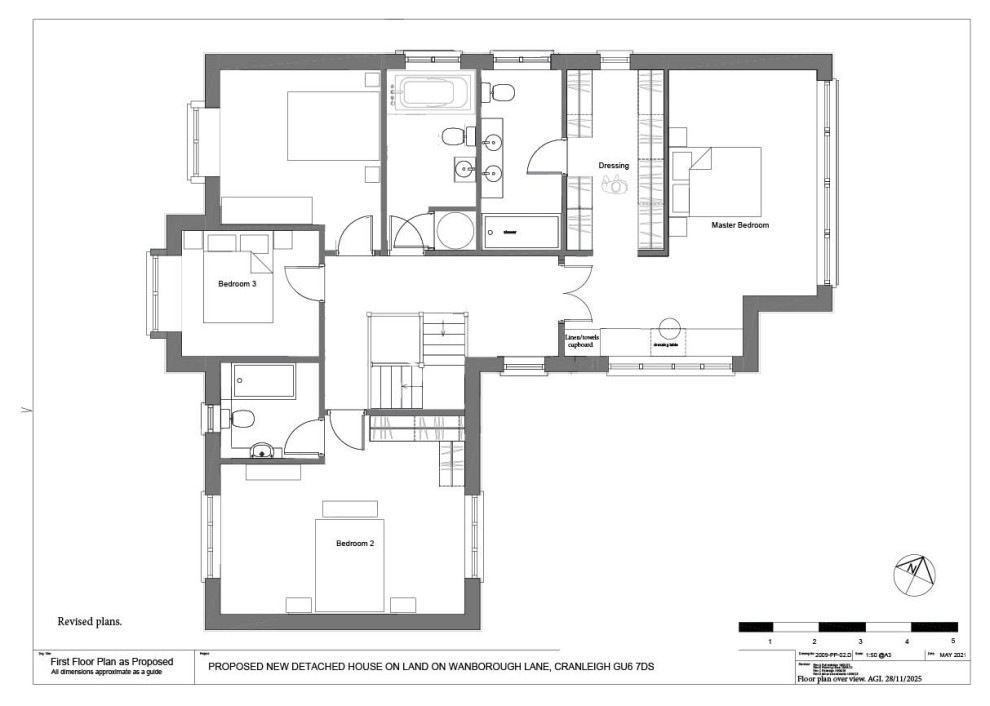
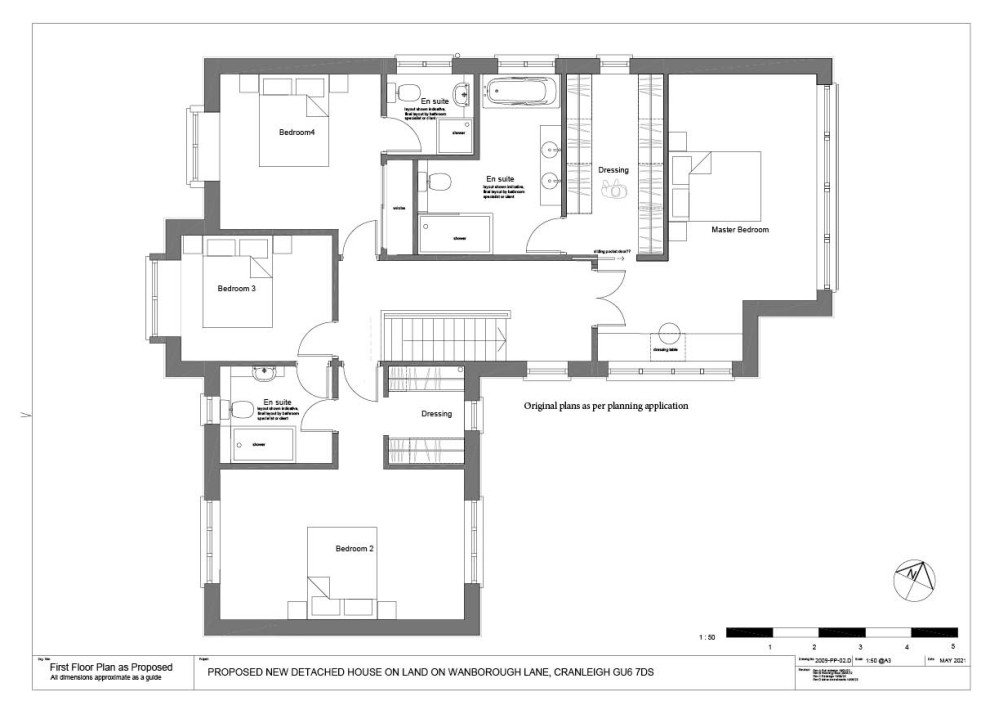
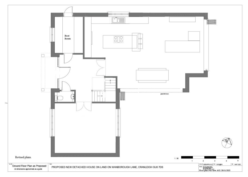
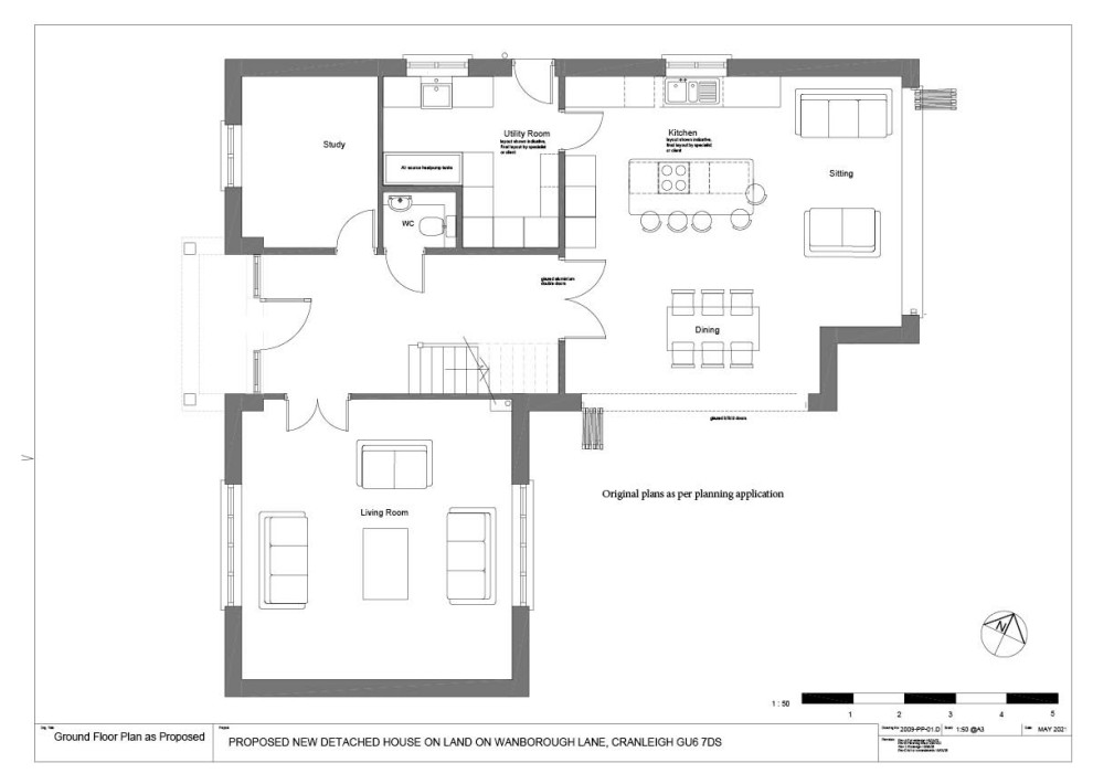
Planning alterations and new floor layouts